Importing and Scaling the Floor Plans
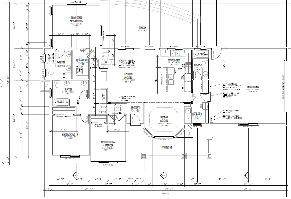
Download the sample floor plan to build your house along with the slides.
This house will be used in future lessons and courses.
Florida's Premier Energy Research Center at the University of Central Florida
Download the sample floor plan to build your house along with the slides.
This house will be used in future lessons and courses.